변압기도표
최상의 일처리와 서비스!
항상 믿음과 신뢰로 고객을 위해 최선을 다하겠습니다.
삼상 22900V-L.V
| 정격출력 (KVA) |
효율(%) | 전압 변동율 (%) |
무부하 전류 (%) |
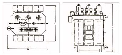
치수(mm) | 유랑(ℓ) | 총중량(kg) | ||
|---|---|---|---|---|---|---|---|---|
| W | D | H | ||||||
| 30 | 97.2 | 1.9 | 6.0 | 850 | 700 | 1180 | 100 | 350 |
| 50 | 97.4 | 1.8 | 6.0 | 900 | 750 | 1200 | 160 | 600 |
| 75 | 97.5 | 1.8 | 6.0 | 1000 | 800 | 1230 | 180 | 600 |
| 100 | 97.6 | 1.8 | 6.0 | 1060 | 950 | 1300 | 320 | 850 |
| 150 | 97.6 | 1.8 | 6.0 | 1060 | 950 | 1300 | 320 | 850 |
| 200 | 97.7 | 1.7 | 6.0 | 1060 | 950 | 1300 | 320 | 850 |
| 300 | 97.9 | 1.6 | 5.5 | 1280 | 1120 | 1380 | 480 | 1200 |
| 400 | 98.0 | 1.5 | 5.0 | 1300 | 1250 | 1480 | 550 | 1450 |
| 500 | 98.1 | 1.5 | 5.0 | 1400 | 1400 | 1530 | 620 | 1650 |
| 600 | 98.1 | 1.5 | 5.0 | 1430 | 1450 | 1550 | 700 | 1800 |
| 700 | 98.3 | 1.4 | 4.5 | 1450 | 1300 | 1580 | 780 | 2100 |
| 800 | 98.3 | 1.4 | 4.5 | 1480 | 1350 | 1600 | 820 | 2350 |
| 900 | 98.4 | 1.3 | 4.5 | 1500 | 1400 | 1620 | 880 | 2600 |
| 1000 | 98.4 | 1.3 | 4.5 | 1520 | 1500 | 1650 | 960 | 2950 |
사양(SPECIFICATION)
- 주파수 : 60Hz, 50Hz
- 1차전압 : 22900V
- 2차전압 : 220,380,440,480,208Y/120V,220/120V,380Y/,220V,480Y/277V,460/250V,440Y/254V
- 탭전환 : 23900/22900/21900/20900/19900
:Ddo, Dyn11
외형치수(DIMENSION)
단상 22900V-L.V
| 정격출력 (KVA) |
효율(%) | 전압 변동율 (%) |
무부하 전류 (%) |
치수(mm) | 유랑(ℓ) | 총중량(kg) | ||
|---|---|---|---|---|---|---|---|---|
| 10 | 97.2 | 2.3 | 6.0 | 580 | 630 | 1120 | 60 | 100 |
| 20 | 97.5 | 1.9 | 5.0 | 600 | 650 | 1150 | 70 | 120 |
| 30 | 97.7 | 1.7 | 5.0 | 750 | 900 | 1250 | 90 | 180 |
| 50 | 97.8 | 1.6 | 5.0 | 800 | 800 | 1250 | 120 | 430 |
| 75 | 97.9 | 1.6 | 5.0 | 800 | 800 | 1300 | 160 | 520 |
| 100 | 98.0 | 1.6 | 5.0 | 800 | 800 | 1300 | 180 | 580 |
| 150 | 98.1 | 1.6 | 5.0 | 900 | 950 | 1500 | 200 | 780 |
| 200 | 98.1 | 1.6 | 5.0 | 1050 | 1100 | 1600 | 210 | 950 |
| 300 | 98.3 | 1.4 | 5.0 | 1100 | 1200 | 1650 | 560 | 1200 |
| 400 | 98.4 | 1.3 | 5.0 | 1170 | 1300 | 1680 | 650 | 1350 |
| 500 | 98.4 | 1.3 | 5.0 | 1200 | 1400 | 1700 | 700 | 1600 |
사양(SPECIFICATION)
- 주파수 : 60Hz, 50Hz
- 1차전압 : 22900Grd.Y/12600V,22900V
- 2차전압 : 220,380,440,480,208Y/120V,220/120V,380Y/,220V,480Y/277V,460/250V,440Y/254V
- 탭전환 : 23900/22900/21900/20900/19900
:Ddo, Dyn11
외형치수(DIMENSION)
변압기 제작공정 POCESS FLOW CHART

